Hi, How Can We Help You?

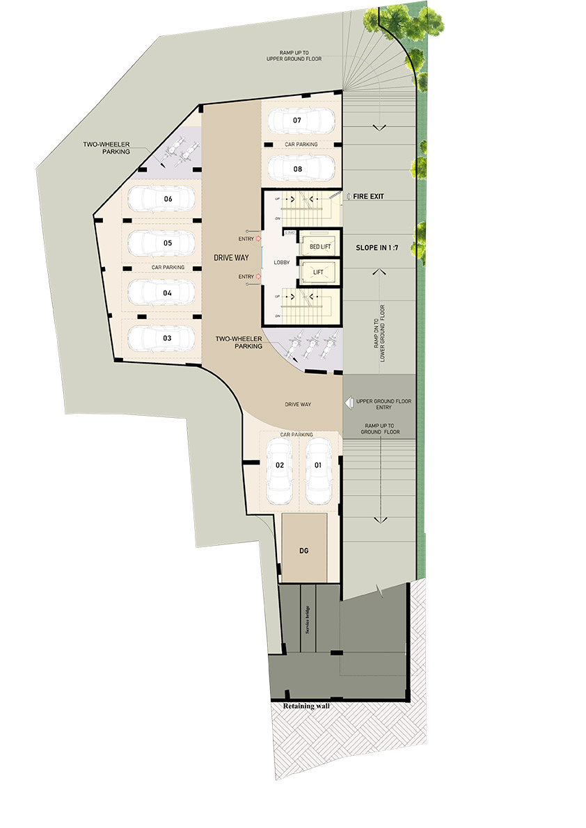
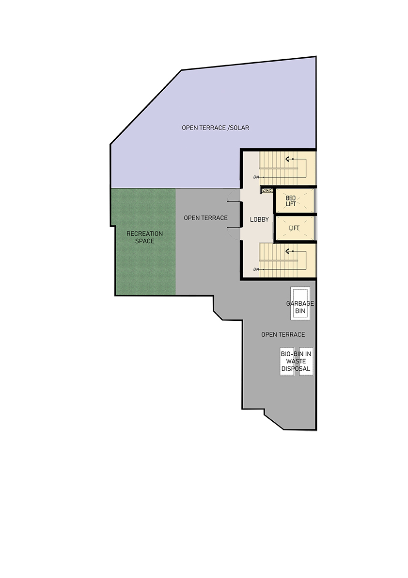
Pearl Floor Plan